微震扁袋除塵器
- 微震反吹扁袋除塵器適用于水泥、建材、冶金、化工、機械、電力等工業部門;在這些行業應用實踐證明了它所具有的獨特性能,為環保事業作出了貢獻。 ...
- 咨詢熱線:13833733360
-
微震扁袋除塵器生產廠家介紹
【微震扁袋除塵器廠家】泊頭市凈化除塵設備廠【20年經驗】,專業做微震扁袋除塵器|價格合理|型號全,質保2年、免費勘測選型設計提供圖紙參數。
微震扁袋除塵器廠家可以根據工況、粉塵顆粒、粉塵濃度、來斷定除塵器的風量、風速、風機功率大小、安裝位置、安裝空間等一系列參數,我們根據以上以上參數來幫你設計、選型、提供結構圖紙、技術參數等,有貴公司審核后我們安排做。
我公司擁有:繪圖部、技術部、研發部、制作部、質檢部、裝配部、安裝部、采購部、銷售部、售后服務部等。
除塵設備制作排序:看圖下料、檢驗下料尺寸、車間焊接、組裝焊接、綜合檢驗、整體完成后試機、噴漆、新產品出爐、發貨、現場安裝、客戶驗收、竣工完成。
擁有設備:除塵骨架拉絲機,骨架焊接機、車床、沖床、剪板機、焊接機、卷管機、等。
擁有:除塵布袋制造車間、除塵骨架制造車間、除塵設備制造車間等。
我們是一條龍制作、銷售、售后服務、質量有保證、中間外協加工少、減少了設備成本、又能控制產品質量、價格合理。
我公司可以提供現場勘測、幫你設計選型、提供結構圖紙、工作原理、技術參數、售前、售后服務貼心。
-
微震扁袋除塵器產品詳情
| 序號 |
型號規格LFVB-N |
實際濾面積(M2) |
濾袋數量(個) |
濾袋長度(M) |
過濾風速(m/min) |
處理風量(m3/h) |
除塵效率(%) |
設備阻力(kpa) |
重量(噸) |
|
1 |
1/50 |
52 |
30 |
2.2 |
1-2 |
3000-6000 |
>99.5 |
0.8-1.6 |
3.06 |
|
2 |
2/70 |
73 |
66 |
1.4 |
4200-8400 |
3.66 |
|||
|
3 |
2/90 |
93 |
66 |
1.8 |
5400-10800 |
4.32 |
|||
|
4 |
2/120 |
124 |
66 |
2.4 |
7200-14400 |
5.13 |
|||
|
5 |
2/140 |
145 |
66 |
2.8 |
8400-16800 |
5.88 |
|||
|
6 |
3/160 |
161 |
128 |
1.6 |
9600-19200 |
6.7 |
|||
|
7 |
3/180 |
181 |
128 |
1.8 |
10800-21600 |
6.85 |
|||
|
8 |
3/220 |
221 |
128 |
2.2 |
13200-26400 |
7.26 |
|||
|
9 |
3/260 |
161 |
128 |
2.6 |
15600-31200 |
8.19 |
|||
|
10 |
4/300 |
297 |
210 |
1.8 |
18000-39000 |
9.27 |
|||
|
11 |
4/380 |
396 |
210 |
2.4 |
22800-45600 |
11.06 |
|||
|
12 |
4/460 |
462 |
210 |
2.8 |
27600-55200 |
12.9 |
-
微震扁袋除塵器價格行情
【微震扁袋除塵器價格】根據工況、粉塵顆粒、粉塵濃度、來斷定除塵器的風量、風速、風機功率大小、安裝位置、安裝空間等一系列參數。選用規格型號、過濾面積、過濾風速、除塵器配置等影響本除塵器價格。可以快速準確快速報價、報裸價、含稅含運費價格、價格合理、出廠價、批發價。
我們能提供化微震扁袋除塵器價格實時報價,根據現場的詳細參數免費提供方案與成本價格,執行批發價格。同等質量的微震扁袋除塵器,我們能做到批發價格銷售發貨。價格特別針對與泊頭相鄰的天津、山東、河北訂貨微震扁袋除塵器價格有優惠,補運費差價。
-
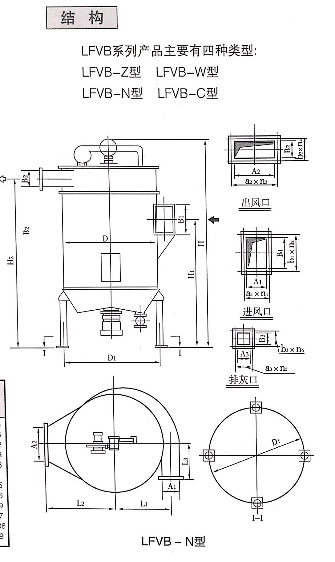
微震扁袋除塵器結構圖紙
微震扁袋除塵器結構圖紙免費提供,下面展示的是常見、常用的微震扁袋除塵器結構圖紙,其它分多個型號規格,是由于網頁空間條件限制不能依依展示,大多數結構圖紙是根據現場的需要專門量身訂做的微震扁袋除塵器,上門測量是實地勘測的,提供貼切的設備結構圖紙。









