高溫卸料器
- 一、星形卸料裝置又稱卸料器,旋轉給料器,鎖氣閥,通常星形卸料的結構是由帶有數片葉片的轉子葉輪、殼體、密封件及減速器、電動機等組成。 二、當上部料倉的物料靠自重落下充填在葉...
- 咨詢熱線:13833733360
-
高溫卸料器生產廠家介紹
【耐高溫卸料器廠家】泊頭市凈化除塵設備廠【20年經驗】,專業做耐高溫卸料器型號全,耐高溫卸料器價格合理,質保2年、現貨發貨快免費選型提供圖紙參數。
本產品規格有(直連式、鏈條式),法蘭有(方形、圓形),常規殼體鑄鐵材質,可以定做(碳鋼、不銹鋼),耐磨、耐高溫、耐腐蝕、壽命長、我們可以根據你給料量、物料顆粒、物料溫度、電動卸料器上方是否有負壓、下方是否氣力輸送等,來設計選型。以滿足
客戶需要制作為真理,不卡料、鎖氣好、下料勻、按尺寸定做、無私奉獻參數圖紙。
我們耐高溫卸料器殼體和減速殼體外協鑄造,鑄造回來所有加工尺寸有自己加工完成。減速機也是自己組裝,這樣可以控制產品制作時間、產品質量、減少成本、增加我們與客戶之間利益。
擁有設備:車床、銑床、鏜床、卷管機、焊接等。
電動卸料器廠家擁有設計繪圖部、制作部、采購部、銷售部、售后服務部。
擁有:制作機加車間、減速機組裝車間、總裝車間、焊接車間、庫房等。
耐高溫卸料器客戶在購買前提供以下參數
我們廠家根據你提供的參數選型設計,我們有二十年設計制作工作經驗,產品質量好。
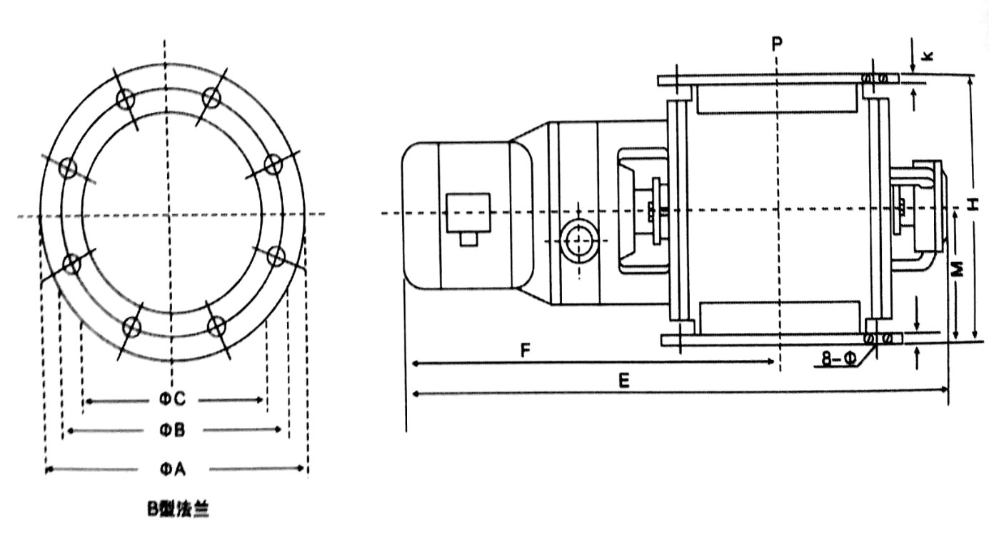
1、如果你是更換需要提供法蘭是(圓形還是方形),法蘭(外徑、內徑、法蘭孔距),法蘭到對面法蘭的距離,是直連式還是鏈條式。如果是新安裝可以忽律這些參數,你們在安裝時按著我們尺寸做就行。
2、需要提供安裝工況、物料名稱、物料顆粒大小、物料是否有硬度、物料是否有粘稠度、物料溫度、上方和下方是否有風壓、你需要的卸料量等一些參數,我們幫你合理選型達到你需求,保證你用著舒心、用著放心。
可以按要求配置變頻電機、防爆電機(IP54、IP55)4極、6極電機等。
耐高溫卸料器使用注意事項
1、定期檢查減速機內潤滑油油位,三個月更換一次油。
2、開機前確保內部沒有物料,應該空載運行,避免悶車損壞電機和減速機。
3、 鏈條式的開機前檢查鏈條的松緊度,調整松緊度。
耐高溫卸料器常見故障
1、在使用過程中如果兩端端蓋軸位漏風、漏灰等現象,可緊固壓蓋或更換密封墊片。
2、使用中突然卡死,請立即斷電從檢查窗把硬質物料掏空,先用手動盤旋轉輪可轉在啟動。
-
高溫卸料器產品詳情
-
高溫卸料器價格行情
【耐高溫卸料器價格】根據安裝工況、法蘭口徑尺寸大小、物料溫度、物料顆粒度大小、卸料量大小、物料是否有腐蝕性、安裝位置上方是否有負壓、下方是否有氣力輸送、電動卸料器是(直連式、鏈條式)等一系類參數。
我們根據以上參數設計選型,確定殼體材質是鑄鐵、碳鋼、不銹鋼,材質更會影響價格。還有配置電機、減速機大小等,以上影響電動卸料器價格因素。
我們可以根據以上參數快速合理選型,價格合理、快速報價、報單價、含稅含運費價、產品質優價廉、出廠價、批發價。
-
高溫卸料器結構圖紙







